AutoCAD Floor Plan Design Guide

O.Artsplacecanmore 30 views
AutoCAD Floor Plan Design Guide

Master Your AutoCAD Floor Plan Design

Hey guys, let’s dive deep into the awesome world of creating floor plans in AutoCAD ! You know, those detailed blueprints that are super crucial for architects, designers, and even DIY homeowners. If you’ve ever wondered how to whip up a professional-looking floor plan using AutoCAD, you’re in the right spot. We’re going to break down the whole process, from setting up your drawing to adding all those nitty-gritty details. It’s not as scary as it sounds, trust me! We’ll cover everything you need to know to get your designs looking sharp and ready for action. So grab your virtual coffee, settle in, and let’s get this design party started!

Getting Started with Your AutoCAD Floor Plan

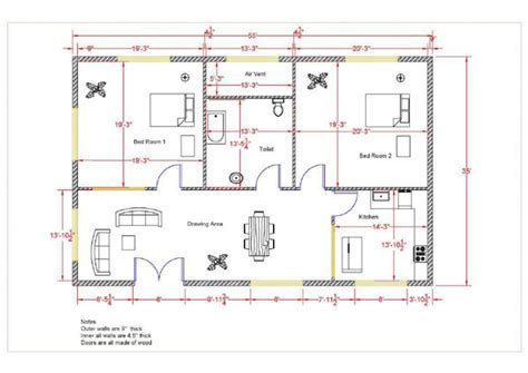
First things first, guys, when you’re thinking about how to floor plan in AutoCAD , it all begins with setting up your drawing correctly. This is like laying the foundation for your entire project, so getting it right saves you a ton of headaches down the line. We’re talking about units, limits, and maybe even some essential layers. Setting up your AutoCAD drawing involves defining the space you’ll be working in. For floor plans, you’ll most likely want to work in architectural units (feet and inches) or metric units (millimeters or meters), depending on your project’s location and standards. Typing UNITS into the command line is your go-to command here. Select the appropriate units and precision. Next, consider your drawing limits. While AutoCAD can technically handle infinite space, setting limits helps you define a printable area, which can be useful for setting up your viewport later. Type LIMITS and follow the prompts to set your lower-left and upper-left corners, usually 0,0 and 12,9 for a standard sheet of paper, though this can be adjusted. But honestly, in modern AutoCAD, many people skip setting limits and rely on plotting scales directly, which is totally fine too! What’s really a game-changer is creating layers . Layers are like transparent sheets stacked on top of each other, allowing you to organize different elements of your floor plan. Think walls, doors, windows, furniture, dimensions, text – each gets its own layer! This makes editing and managing your drawing a breeze. Type LAYER to open the Layer Properties Manager. Create new layers and assign different colors and linetypes to them. A common practice is to have a ‘WALLS’ layer, a ‘DOORS’ layer, a ‘WINDOWS’ layer, and so on. You can even control the linetype and lineweight for each layer. For instance, walls are typically thicker and solid, while hidden lines might be dashed. Setting up these basic elements upfront will make the rest of the AutoCAD floor plan creation process so much smoother. It’s all about building a solid, organized foundation so you can focus on the creative part without getting bogged down in technicalities. Remember, a well-organized drawing is a happy drawing, and a happy drawing leads to a less stressed you!

Drawing Your Walls: The Backbone of the Floor Plan

Alright, let’s get down to the nitty-gritty: drawing the actual walls. This is where your floor plan in AutoCAD starts to take shape! When we talk about drawing walls in AutoCAD , the LINE command is your trusty steed for simple layouts, but the POLYLINE command is often a better choice for walls because it creates a single, continuous object. This makes it easier to offset, trim, and modify later. Type PL and hit Enter. You’ll start drawing a series of connected lines. For straight walls, you can click from one point to another. If you need a specific angle, use the Tab key to switch between absolute and relative coordinates or turn on Ortho mode (F8) to draw perfectly horizontal or vertical lines. For more complex shapes, you can continue clicking points. Once you’ve drawn the outline of your walls, you’ll likely want to give them thickness. This is where the OFFSET command shines. Type O and hit Enter. You’ll be prompted for the offset distance – this is the thickness of your wall (e.g., 6 inches or 150mm). Select your polyline (your wall outline), and then click inside or outside the polyline to create a parallel line at that specified distance. Voila! You have a wall with thickness. If your walls intersect, you might need the TRIM command ( TR + Enter) to clean up the overlapping lines. Select the cutting edges (the lines you want to trim against) and then select the parts of the lines you want to remove. Alternatively, you can use the JOIN command ( J + Enter) to connect separate line or polyline segments into a single, continuous polyline, which can be super handy if you initially used LINE commands or if your offset created separate lines. For true architectural accuracy, some advanced users might opt for specialized tools or plugins that create intelligent walls, but for most floor plans, drawing lines and using OFFSET is perfectly effective. Remember to draw your walls on your designated ‘WALLS’ layer! This keeps everything tidy and makes it easy to switch wall visibility on or off. Don’t be afraid to zoom in and out to ensure your lines are connecting perfectly. Precision is key here, as even a small gap can cause issues later when you’re trying to add doors or windows. Think of these walls as the bones of your building; they need to be strong, accurate, and well-defined. So take your time, use the right commands, and make those walls look professional!

Adding Doors and Windows: Letting Light and Access In

Now that we’ve got our walls up, it’s time to add the essential elements that make a building functional and livable: doors and windows in AutoCAD floor plans . Guys, this is where your floor plan really starts to feel like a real space! When adding doors and windows in AutoCAD , the key is to use blocks. Blocks are pre-drawn objects that you can insert multiple times into your drawing. This saves a ton of time and ensures consistency. If you need to make a change to a door or window style, you only need to edit the block definition, and all instances will update automatically – pretty neat, right? Let’s start with doors. You can create your own door block or find pre-made ones online. To create one, draw the door swing arc and the door panel on a separate layer (like your ‘DOORS’ layer). Then, type BLOCK and hit Enter. Give your block a name (e.g., ‘Door-30’), pick a base point (usually the hinge point), select the objects that make up your door, and click OK. Now you can insert this block wherever you need a door using the INSERT command ( I + Enter). When inserting, you can rotate and scale it to fit your wall opening. Doors are typically placed within wall openings. You can draw your wall openings first (often just a gap in the wall lines) and then insert the door block. Ensure the door swing direction is correct for the space. For windows, the process is similar. Create a block for your window, again on its dedicated ‘WINDOWS’ layer. Draw the window frame and sash details. Use BLOCK , define it, and insert it into your wall openings. Windows are usually spaced evenly or placed strategically for light and ventilation. Remember to place these blocks accurately within the wall openings. You can use the TRIM command to ensure the wall lines are properly cut where the door and window blocks are inserted. If you’re using the OFFSET method for walls, you might need to trim away the inner line of the wall where the door or window will go before inserting the block. Many architects and designers use dynamic blocks, which have built-in features like stretching, flipping, and visibility states, making them incredibly versatile. If you’re serious about efficient floor planning in AutoCAD, learning to create and use dynamic blocks is a fantastic investment of your time. Just place your door and window blocks thoughtfully, ensuring they align with your wall lines and open into the correct spaces. It makes a huge difference in the clarity and professionalism of your AutoCAD floor plan design .

Dimensioning and Annotating Your Floor Plan

So, we’ve got the walls, doors, and windows in place. Now, to make our floor plan in AutoCAD truly useful and understandable, we need to add dimensions and annotations . Guys, this is what tells the story of your design – the sizes, labels, and key information! Dimensioning in AutoCAD is done using a variety of commands, but the most common ones are DIMLINEAR (for horizontal and vertical dimensions), DIMALIGNED (for dimensions parallel to an object), and DIMCONTINUE (to chain dimensions off a previous one). Type DIMLINEAR and select your start and end points for the measurement, or select the object itself, and then click where you want the dimension line to appear. For example, to dimension the length of a wall, you’d use DIMLINEAR and click the two ends of the wall. To dimension an entire room, you might use DIMLINEAR multiple times or use DIMCONTINUE to chain dimensions from one point to the next. It’s crucial to have your dimensions clean and organized. This is where dimension styles come in handy. Type DIMSTYLE to access the Dimension Style Manager. Here, you can create custom styles that control the size of your text, the arrowhead style, the extension line appearance, and more. Having a consistent dimension style across your entire drawing is vital for a professional look. Create a style that suits your needs, perhaps with text height of 1 8 inch and standard architectural tick marks. Always use your ‘DIMENSIONS’ or ‘ANNOTATION’ layer for these! Now, for annotations, this includes adding text labels for rooms, notes, and other important information. The TEXT command (or MTEXT for multiline text) is your tool here. Type TEXT or MTEXT , click where you want your text to start, and type your label (e.g., “Living Room”, “Bedroom 1”, “10’-0” x 12’-6”“). Again, use your ‘TEXT’ or ‘ANNOTATION’ layer for this. When labeling rooms, it’s often helpful to use the HATCH command ( H + Enter) to fill the room area with a solid color or pattern and then place your text in the center. This visually separates the rooms. For notes and callouts, be concise and clear. Use leaders ( QLEADER ) to point specific elements that need explanation. Remember, clarity is king when it comes to AutoCAD floor plan annotations . Readers should be able to understand the space and its features without needing a personal guide. Double-check all your measurements and labels for accuracy. It’s the details in dimensioning and annotation that elevate a basic drawing into a professional, functional blueprint. It shows you’ve really thought through the design and communicated it effectively!

Refining and Finalizing Your AutoCAD Floor Plan

We’re in the home stretch, guys! You’ve drawn the walls, added doors and windows, and dimensioned everything. Now, it’s time for the crucial step of refining and finalizing your AutoCAD floor plan . This is where you polish your drawing, check for errors, and get it ready for presentation or construction documents. Think of it as putting the final gloss on a beautiful piece of furniture. One of the most important things to do is a thorough drawing audit . Zoom into every corner, every intersection, every door and window opening. Are there any stray lines? Are all the wall lines properly joined? Are the doors and windows inserted correctly and aligned with the wall openings? Use commands like AUDIT (type AUDIT and hit Enter) to check for and fix drawing errors. AutoCAD can often find and repair issues automatically. Also, consider using PURGE ( PURGE + Enter) to remove unused blocks, layers, and other drawing elements. This cleans up your file and makes it smaller and more efficient. Checking line weights and linetypes is also critical. Ensure that your walls have a heavier line weight than your doors and windows, and that hidden lines (if you’re using them) are clearly dashed. This visual hierarchy is essential for readability. If you haven’t already, make sure everything is on the correct layer. This is the backbone of an organized drawing. Adding furniture and fixtures is often part of the final refinement. While you might not need a fully furnished plan, adding basic furniture outlines (beds, sofas, tables) can help illustrate the scale and flow of the rooms. Use blocks for these too! Don’t forget to add room names and areas . You can calculate room areas using the AREA command or by creating regions and using the LIST command. Then, use MTEXT to label each room with its name and calculated area. This is incredibly useful for clients. Reviewing your text and dimensions for clarity, accuracy, and consistency is also a must. Are all the labels legible? Are the dimensions correct? Is the spelling right? A fresh pair of eyes, if possible, can catch errors you might have missed. Finally, think about plot styles and output . How will this floor plan be presented? Will it be printed or shared digitally? Set up your PAGESETUP and choose appropriate plot styles (CTB or STB files) to control how lineweights and colors are plotted. Make sure your title block is correctly filled out with project information. By taking the time to refine and finalize your AutoCAD floor plan design , you ensure that your work is professional, accurate, and ready to serve its purpose, whether it’s for a client presentation, a permit application, or construction. It’s this attention to detail that truly makes a difference!